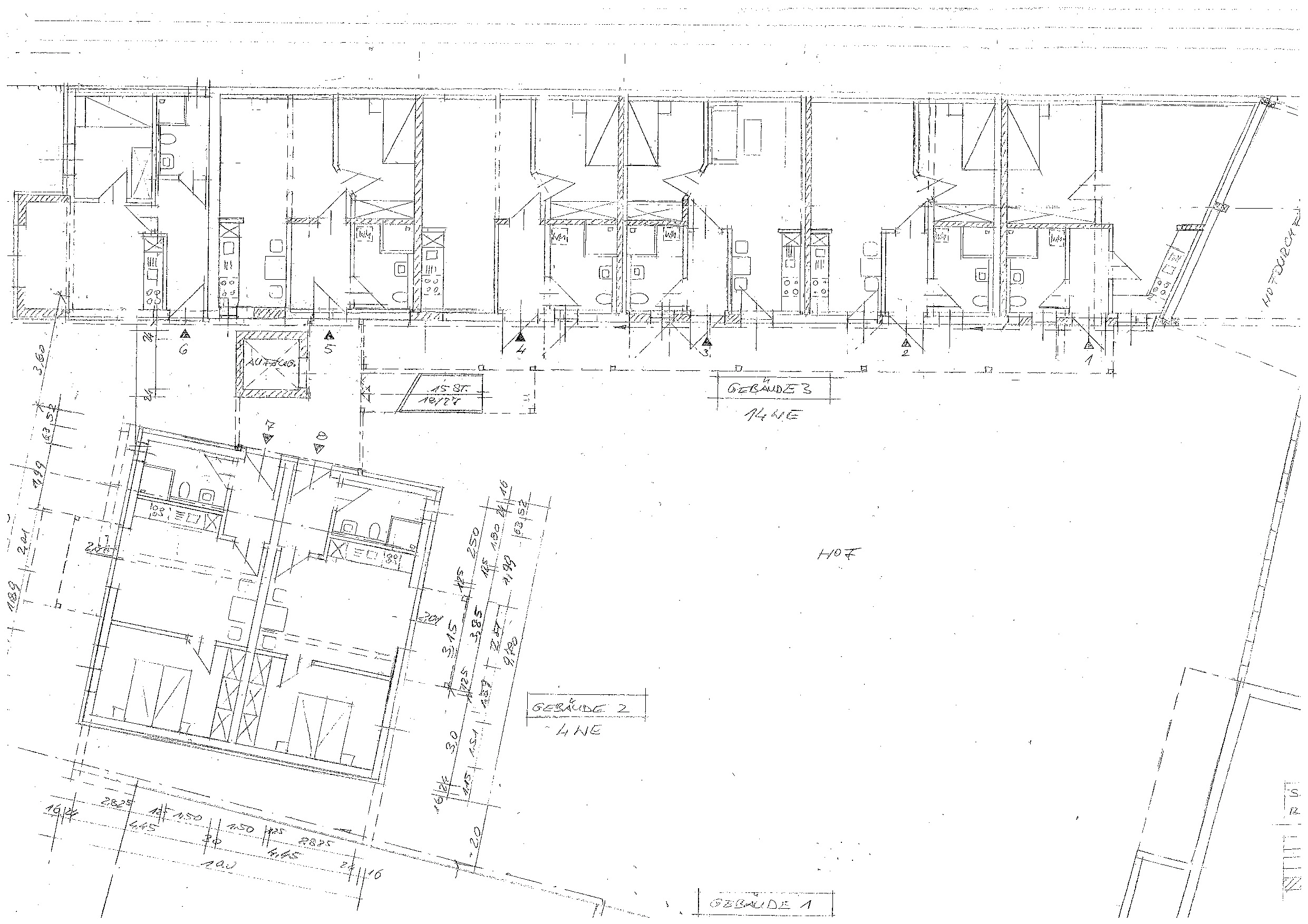
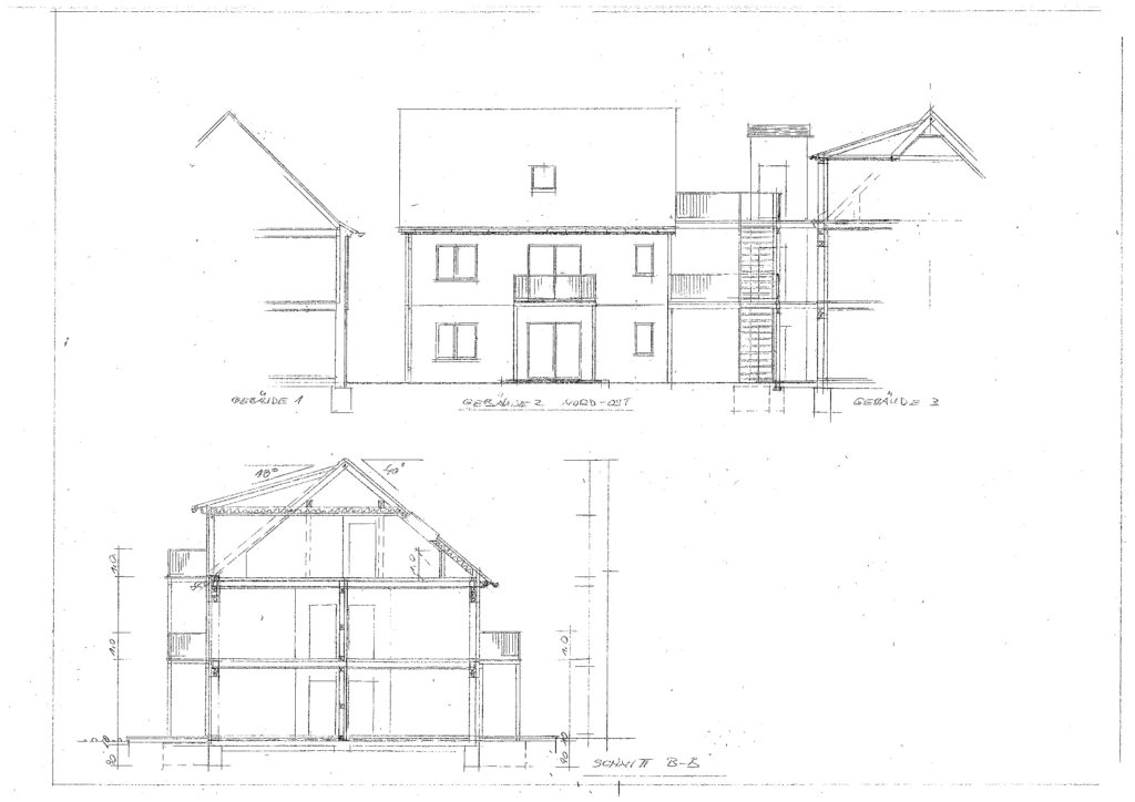
Kem­me­hof